Home
Über Uns
Leistungen
Kontakt
Impressum
Datenschutz
Leistungen
Home > Leistungen
Freileitungskonstruktion
> Gestänge Entwicklung in 2D und 3D
> Erstellung von Sanierungszeichnungen in 2D und 3D
> Erstellung von Konstruktion nach Aufmaß
> 1.000 Neubau Maste Entwickelt > 2.500 Bestandsmaste Saniert
Mobilfunk
> Konstruktion von Mobilfunkmasten
> Statik von Mobilfunkmasten und Fundamenten
> 5G Planung von In- und Outdoor Standorten
> 5G Planung für Maste und Dachstandorte
> 5G Planung für Neubau und Bestand
> 1.000 Neubau Maste Entwickelt > 2.500 Bestandsmaste Saniert
Stahl- und Hochbauplanung
> Allgemeine Stahlbau Konstruktion (Hochbau, Industriebau etc.)
> Erstellung von Schal- und Bewehrungsplänen
> 3D Rendering von Hochbauten
> 1.000 Stahlkonstruktionszeichnungen Kapazität > 2.000 Bewehrungszeichnungen Kapazität
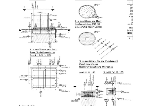
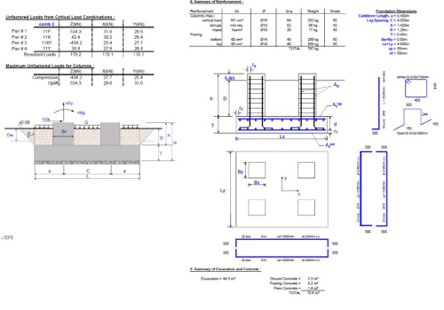
Fundamentbemessung
> Neubaufundamente für Freileitungsmaste
> Sanierungskonzepte für Freileitungsmaste
> Nachberechnung von Bestandsgründungen
> Plattengründungen
> Pfahlgründungen
> Micropfahlgründungen
> Sonderfundamente
> 250 Fundamentbemessungen Kapazität
Statik von Stahlbauprojekten und Infrastrukturanlagen
> Erstellung von Freileitungsmasten mit PLS
> Statik von Stahlkonstruktionen
> Statik von Umspannwerken
> Statik von Radarstationen
> Statik von Fußgängerbrücken
Planung von Glasfaserinfrastruktur
> Genehmigung der Planung
> Basic Planning
> Master Planning
> Design Planning
> Detailed Planning
> 10 Jahre Erfahrung der Teams in Deutschland > 20 Planer > Kapazität 180.000 HT /a
Diese Website verwendet Cookies, um Ihnen die bestmögliche Nutzung zu ermöglichen.
Mehr erfahren
Akzeptieren